Current Development

A white house with a porch and a driveway, surrounded by greenery and shrubs, under a blue sky.

This property is currently undergoing a comprehensive refurbishment and will be offered for private sale upon completion.

Subject to build stage, buyers may have the opportunity to personalise selected finishes, including paint colour, tiling and other finishes, upon reservation.

Register Interest

Property Overview

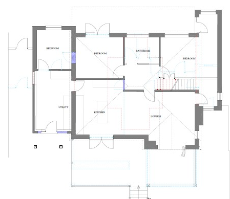
The current development is located at 30 Southdown Avenue, Preston, Weymouth, and involves the full refurbishment of an existing four-bedroom chalet bungalow, which will be offered for sale upon completion.

The project includes internal reconfiguration and upgraded services, with a design approach focused on light, flow, and long-term durability. Finishes have been selected to reflect contemporary residential standards.

Computer-generated images and visualisations are indicative only and are intended to illustrate the proposed design concept. Final layouts, specifications, and finishes may vary from those shown and should not be relied upon as exact representations.

Bright, modern open-concept living room and kitchen with large windows, white walls, and light wood flooring.

Proposed Layout & Internal Design

Modern kitchen with light wood cabinets, white upper cabinets, and an island with four stools, pendant lights, and minimal decor.
Minimalist entryway with framed photographs on the wall, a wooden storage unit with open shelves and a white cabinet, a vase with branches on a bench, and coats on hooks.
Floor plan of a house with labeled bedrooms, bathroom, utility, kitchen, and lounge areas.
Floor plan of a bedroom with an ensuite bathroom.

Outlook & Coastal Views

 

Location - Preston, Weymouth